Herzlichen Dank für Ihre Anfrage.
Wir werden diese so schnell wie möglich bearbeiten.

















Inhaber
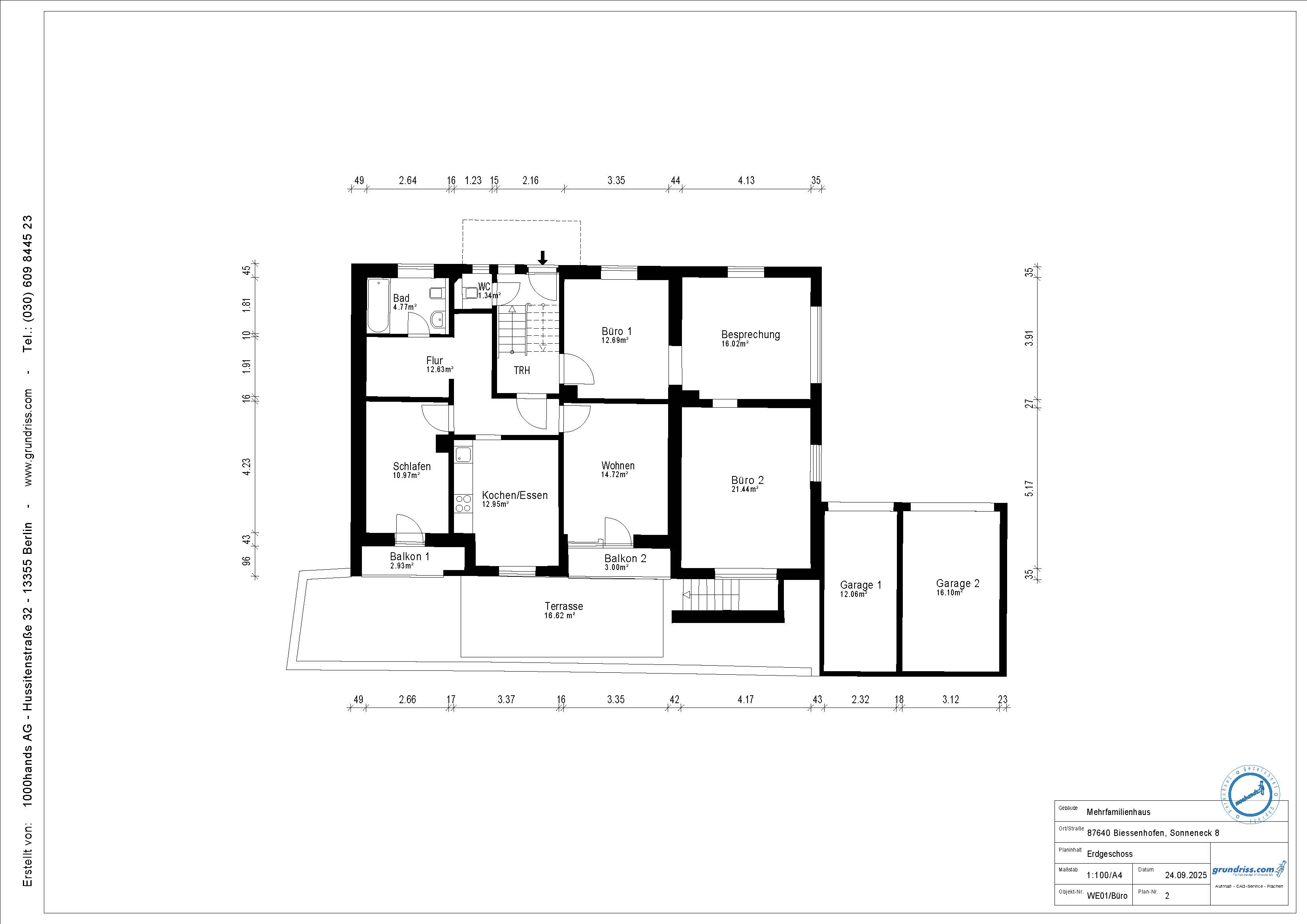
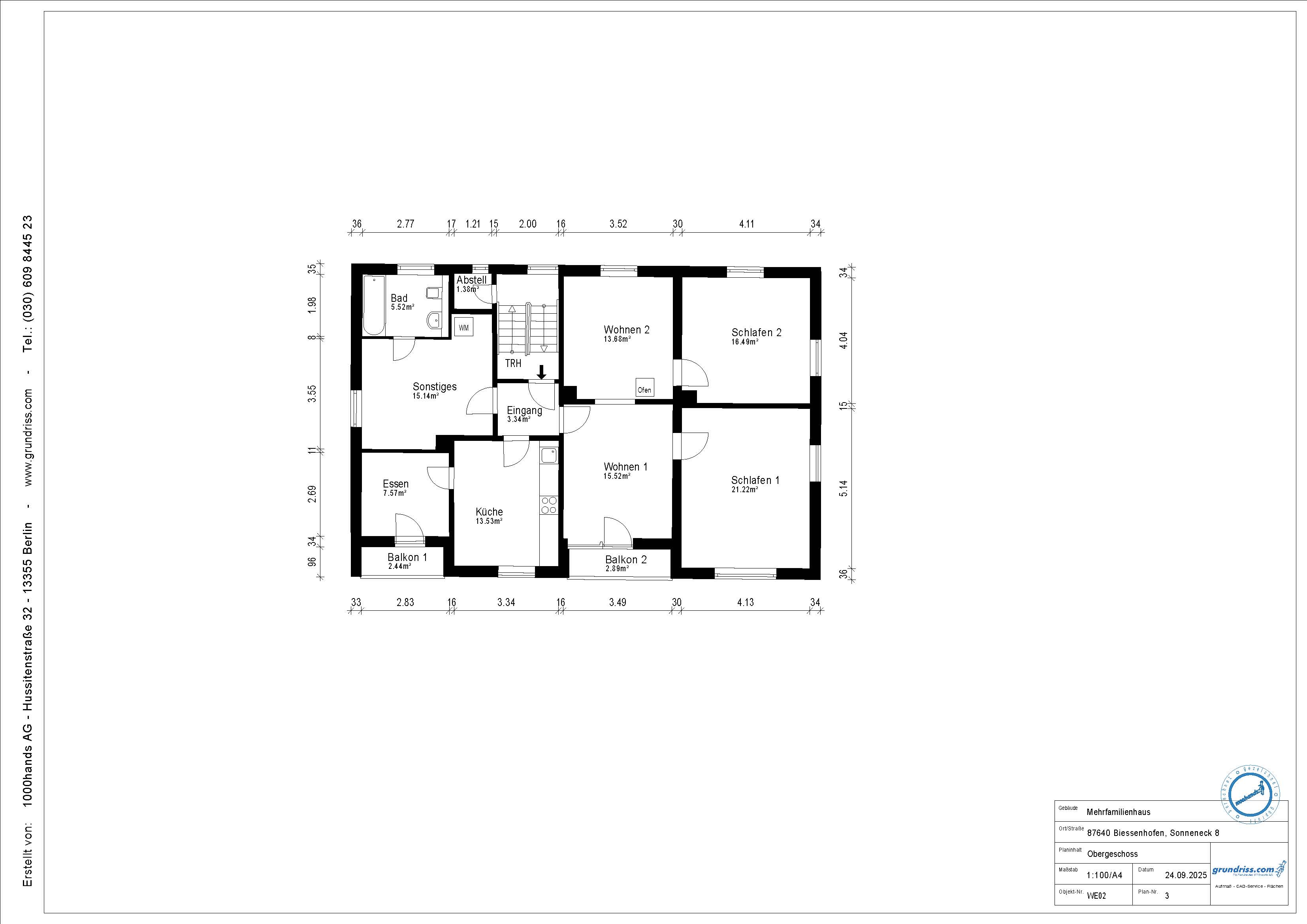
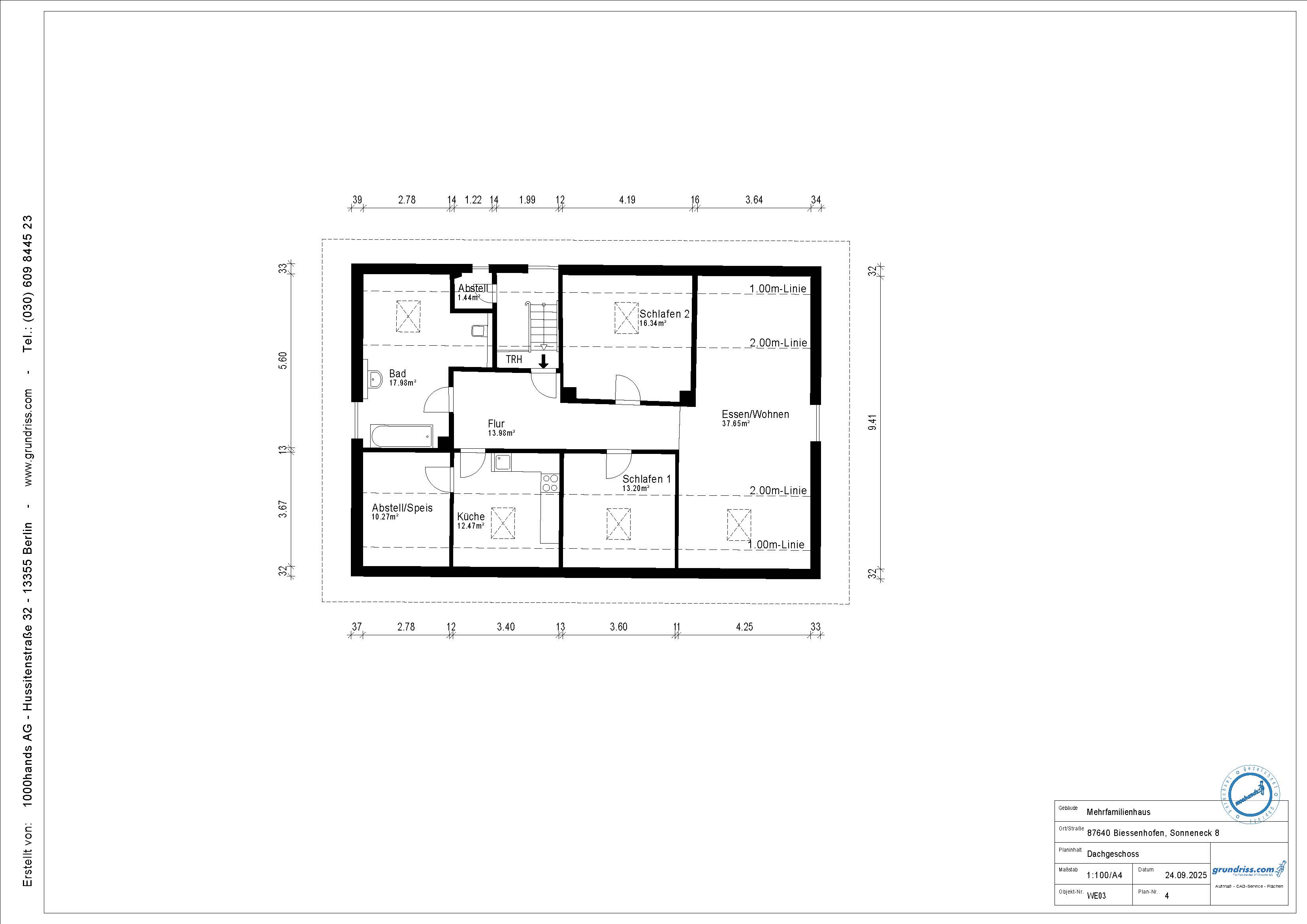
Das Gebäude wurde 1928 als Einfamilienhaus erbaut, dann in den 70ern angebaut und 2023 komplett saniert und in den heutigen Nutzen des Wohn- und Geschäftshauses umgewandelt. Die Baugenehmigung liegt vor für die bestehenden 2 Wohnungen und 1 Gewerbeeinheit, sowie für den Ausbau des Dachgeschosses in eine weitere Wohneinheit.
Am Objekt stehen zusätzlich 4 Außenstellplätze, sowie zwei Einzelgaragen zur Verfügung, weiter ist ein Doppelschuppen, sowie ein Unterstand für Fahrräder vorhanden.
Die Sanierung im Jahr 2023 umfasst folgende Gewerke:
– Installation eines neuen Heizsystems in Gas-Brennwert-Zentralheizung
– Vollumfängliche Neuinstallation der Elektrik im gesamten Gebäude
– Ertüchtigung des Treppenhauses (Fliesenarbeiten, Türen, Wände, etc.)
– Vollständiges Verputzen von EG und Treppenhaus
– Verputzen und neu Tapezierren im OG
– Erneuerung aller Bodenbeläge in Parkett und Vinyl
– Erneuerung der Sanitärgegenstände in den Badezimmern
– Erneuerung der Bodenfliesen in den Badezimmer
– Neuinstallation eines WCs im EG
– Erneuerung diverses Leitungen
– Erneuerung aller Fenster und Fenstertüren in Kunststoff-2-fach-Verglasung
– Streichen und teilweise Verkleiden der Fassade
Derzeit wird das Büro im EG links eigengenutzt, die Wohnung 1 im EG rechts ist vollmöbliart und wird als Ferienwohnung vermietet, die Auslastung liegt bei ca. 83%, die Wohnung 2 im OG ist noch vermietet, wurde aber zum November gekündigt, eine Neuvermietung kann jederzeit durchgeführt werden.
Das Objekt wird Provisionsfrei angeboten
Die Immobilie befindet sich in der Ortsmitte von Biessenhofen, einer idyllischen Gemeinde im Landkreis Ostallgäu zwischen Kaufbeuren und Marktoberdorf. Biessenhofen liegt malerisch inmitten saftiger Wiesen und bewaldeter Hügel. Die Nachbarschaft ist geprägt von gepflegten Doppelhaushälften und Reihenhäusern. In unmittelbarer Umgebung befinden sich Schulen, Kindergärten/KiTa und diverse Einrichtungen des täglichen Bedarfs, darunter Supermarkt, Getränkemarkt, Apotheke, Banken, Bäcker, etc.
Der Bahnhof Biessenhofen ist fußläufig erreichbar.
– Gas-Zentralheizung aus 2023
– Gegensprechanlage mit Türöffnungfunktion aus 2023
– hochwertiger Parkettboden oder Vinylböden in allen Räumen
– alle Fenster in Kunststoff 2-fach
– Schwedenofen im EG und OG möglich
– hochwertige Einbauküche vom Schreiner aus 2023 (EG WHG1 links)
– Badezimmer mit hochwertiger Ausstattung von deutschen Premiumherstellern
– Tageslichtbad
– Dachgeschoss ausbaubar
Angeboten wird parallel auch das Nachbargebäude (Doppelhaushälfte), welches bisher als Gesamtareal genutzt wurde.
Wir werden diese so schnell wie möglich bearbeiten.